- occupants 4
-
2 Double beds
2 - 2 Bedrooms 2
- 2 bathrooms 2
- 80 m² 80 m²
- Wi-Fi Wi-Fi
Availability and prices
Accommodation
Description
Fontana Penthouse is a beautiful apartment facing the lake, located in Varenna, in the picturesque village of Fiumelatte, on Lake Como.
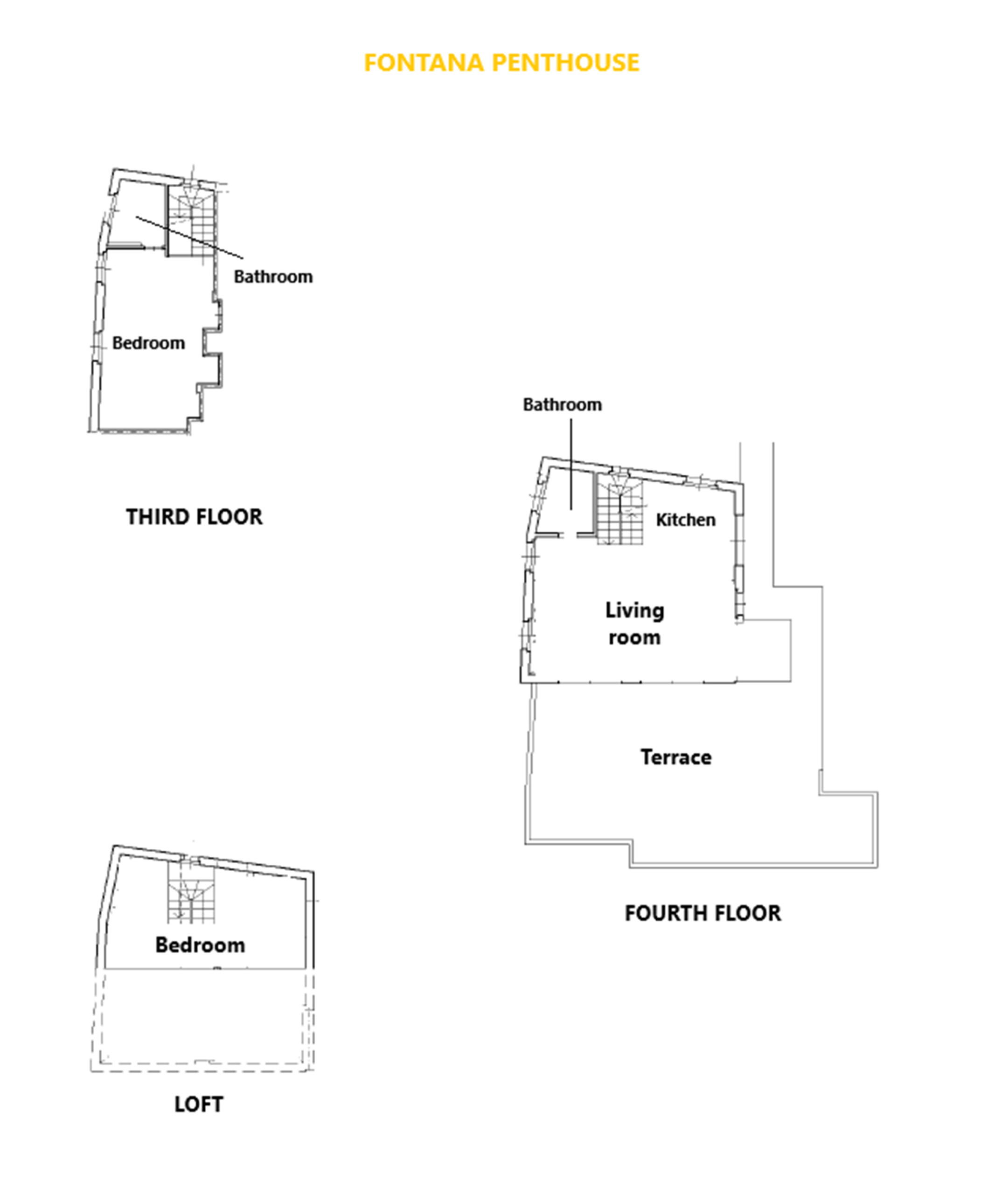
The apartment is located in a residence with shared garden and is distributed on three levels. The entrance is on the fourth floor of the building and opens onto a bright and spacious living room with sofa and TV. Two French doors allow you to exit onto the large terrace overlooking the lake, equipped with table, chairs and deck chairs, ideal for relaxing in the sun or enjoying dinners and aperitifs while enjoying the sunset. Complete the floor a kitchenette with kitchen equipped with induction hob, oven, dishwasher and everything you need to prepare delicious dishes, and a bathroom, equipped with double shower head, sink, bidet and toilet.
A staircase leads to the loft, where there is a double bed, while another one leads to the third floor, where there is the second bedroom with a double bed and a second bathroom fully equipped.
Fontana Penthouse has a modern and elegant decor and is equipped with all the comforts such as Wifi, hairdryer, washing machine, iron and ironing board.
The house is 300 meters from the train station of Fiumelatte, with local trains to and from Varenna, 2km km from the historic center of Varenna, and 3 km from the ferry that connects Varenna to Bellagio, Cadenabbia, Menaggio, Tremezzo and all the lake center.
Notes: Can accommodate up to four people ▪ Smoking is prohibited ▪ Animals not allowed ▪ Disabled not accessible
This property is managed by Varenna Holidays, a leading company in the short-term rental market on Lake Como.
By booking this accommodation, you can enjoy many EXCLUSIVE ADVANTAGES that we offer to our guests. Discounts on EXPERIENCES, recreational activities designed to enrich and enhance your stay on Lake Como, as well as Cooking classes, Boat tours, E-Bike rentals, Cultural visits and Personalized experiences tailored to your tastes. Unique Coupons and OFFERS for shopping at our BOUTIQUE, a store in Varenna where you can find the best Made-in-Lake-Como products. Ceramics, Sunglasses, Fine Silk, Local Crafts, Gin, Wine, and Olive Oil: the perfect selection to keep Lake Como always in your memories.
Book with us! Our staff will assist you during your stay and recommend the best attractions to fully experience every moment. Varenna Holidays: the dream comes true.
CIR: 097084-CIM-00155 - CIN: IT097084B42JQJIDZ8
The apartment is located in a residence with shared garden and is distributed on three levels. The entrance is on the fourth floor of the building and opens onto a bright and spacious living room with sofa and TV. Two French doors allow you to exit onto the large terrace overlooking the lake, equipped with table, chairs and deck chairs, ideal for relaxing in the sun or enjoying dinners and aperitifs while enjoying the sunset. Complete the floor a kitchenette with kitchen equipped with induction hob, oven, dishwasher and everything you need to prepare delicious dishes, and a bathroom, equipped with double shower head, sink, bidet and toilet.
A staircase leads to the loft, where there is a double bed, while another one leads to the third floor, where there is the second bedroom with a double bed and a second bathroom fully equipped.
Fontana Penthouse has a modern and elegant decor and is equipped with all the comforts such as Wifi, hairdryer, washing machine, iron and ironing board.
The house is 300 meters from the train station of Fiumelatte, with local trains to and from Varenna, 2km km from the historic center of Varenna, and 3 km from the ferry that connects Varenna to Bellagio, Cadenabbia, Menaggio, Tremezzo and all the lake center.
Notes: Can accommodate up to four people ▪ Smoking is prohibited ▪ Animals not allowed ▪ Disabled not accessible
This property is managed by Varenna Holidays, a leading company in the short-term rental market on Lake Como.
By booking this accommodation, you can enjoy many EXCLUSIVE ADVANTAGES that we offer to our guests. Discounts on EXPERIENCES, recreational activities designed to enrich and enhance your stay on Lake Como, as well as Cooking classes, Boat tours, E-Bike rentals, Cultural visits and Personalized experiences tailored to your tastes. Unique Coupons and OFFERS for shopping at our BOUTIQUE, a store in Varenna where you can find the best Made-in-Lake-Como products. Ceramics, Sunglasses, Fine Silk, Local Crafts, Gin, Wine, and Olive Oil: the perfect selection to keep Lake Como always in your memories.
Book with us! Our staff will assist you during your stay and recommend the best attractions to fully experience every moment. Varenna Holidays: the dream comes true.
CIR: 097084-CIM-00155 - CIN: IT097084B42JQJIDZ8
Distribution of bedrooms
1 Double bed
1 Double bed
Bathroom distribution
2 bathrooms
Special features
Internet
Terrace
Lake views
Garage
Open plan kitchen (induction)
Refrigerator
Oven
Freezer
Dishwasher
Dishes/Cutlery
Kitchen utensils
Coffee machine
Views
Mountain
Lake
Mandatory or included services
Bed linen: Included
Bed linen
Bed linen complete with sheets, pillowcases and duvet cover if needed.
Cleaning and disinfection: € 200.00 / booking
Cleaning and disinfection
Final cleaning with deep disinfection
+ INFO
Disinfection: Included
Disinfection
Deep cleaning with certified products
+ INFO
Heating: Included
Heating
Winter heating
Internet Access: Included
Internet Access
wifi service
Garage: Included
Garage
Garage or private parking spot
Stamp duty: € 2.00 / booking
Towels: Included
Towels
set of towels with 3 sizes
Optional services
Additional cleaning: € 120.00 / booking
Additional cleaning
Additional cleaning during the stay with bed making, rearrangment of the property and bath cleaning
Aperitif by the lake in Villa Monastero in Varenna: € 55.00 / person
Arrival out of schedule: € 50.00 / booking
Arrival out of schedule
After Hours arrival - on payment
Baby high chair: € 5.00 / night
Baby high chair
Baby chair for kids up to 2 years
Breakfast Pack: € 25.00 / booking
Breakfast Pack
breakfast pack includes: breakfast buiscuits - rusks - soluble coffee – a pack of cereals - mini jams - a pack of classic tea – dessert cookies
Cot/Crib: € 10.00 / night
Cot/Crib
Cot complete with linen suitable for kids up to 2/3 years
Extra towels: € 7.50 / person
Extra towels
If you’d like to have an extra set of towels please contact us! We would be happy to provide you with fresh ones! The set includes three towels (body, face and hands).
Linen Change: € 15.00 / person
Linen Change
Would you like to have fresh linen during your stay? Let us know and we’d be delighted to assist with the change of sheets.
Luggage Storage: Included
Luggage Storage
Baggages storage for guests after check-out (max 7 hours)
Welcome Pack: € 50.00 / booking
Welcome Pack
Start your holidays without problem! Book your Welcome Pack and upon arrival you don’t need to make shopping for the house; in your welcome pack you will find everything you need to start immediatly your vacation in the apatment you took. Your Welcome Pack includes:a package of pasta - Italian sauce – soluble coffee - sugar - salt - pepper - oil - vinegar - a bottle Prosecco – a bottle of still water – crackers, and also the necessary for household management such as dishwasher tablets & deterge
Taxes
Tourist tax: Included in the total price
Tax calculationPlease add the dates of the stay to display the tax conditions
Your schedule
Check-in from 16:00 to 18:00 Every day
Check-outBefore 10:00
Comments
- No smoking
- No pets allowed
- No pets allowed
Video
Booking conditions
From the booking date until 8 days before check-in, there is no cancellation penalty
Cancellation policies
In case of cancellation the following charges will apply
From the booking date until 8 days before check-in
0% of the total rent
From 7 days before until check-in
30% of the total rent
No-show
100% of the total rent
Additional notes
- The agency asks you to contact them a week before arrival to inform them of your plane/ship Nº and the arrival time to arrange key collection.
- VAT included in the accommodation price
Map and distances
-
Distances
Rock beach
0 m
Lake - Lago di Como
10 m
River - Fiumelatte
150 m
Train station - Stazione di Fiumelatte
250 m
Restaurant - Hosteria del Platano
270 m
Cafe - Bar Il Barilot
1.5 km
Sand beach - Spiaggia di Varenna
1.5 km
Town centre - Varenna
1.5 km
Shops - La Bottega di Varenna
1.5 km
Hospital - Ospedale di Lecco
25 km
Ski Slope - Piani di Bobbio
45 km
Airport - Milano
70 km
International airport - Milano Malpensa
70 km
Availability calendar
| March - 2026 | ||||||
| Mon | Tue | Wed | Thur | Fri | Sat | Sun |
| 1 | ||||||
| 2 | 3 | 4 | 5 | 6 | 7 | 8 |
| 9 | 10 | 11 | 12 | 13 | 14 | 15 |
| 16 | 17 | 18 | 19 | 20 | 21 | 22 |
| 23 | 24 | 25 | 26 | 27 | 28 | 29 |
| 30 | 31 | |||||
| April - 2026 | ||||||
| Mon | Tue | Wed | Thur | Fri | Sat | Sun |
| 1 | 2 | 3 | 4 | 5 | ||
| 6 | 7 | 8 | 9 | 10 | 11 | 12 |
| 13 | 14 | 15 | 16 | 17 | 18 | 19 |
| 20 | 21 | 22 | 23 | 24 | 25 | 26 |
| 27 | 28 | 29 | 30 | |||
| May - 2026 | ||||||
| Mon | Tue | Wed | Thur | Fri | Sat | Sun |
| 1 | 2 | 3 | ||||
| 4 | 5 | 6 | 7 | 8 | 9 | 10 |
| 11 | 12 | 13 | 14 | 15 | 16 | 17 |
| 18 | 19 | 20 | 21 | 22 | 23 | 24 |
| 25 | 26 | 27 | 28 | 29 | 30 | 31 |
| June - 2026 | ||||||
| Mon | Tue | Wed | Thur | Fri | Sat | Sun |
| 1 | 2 | 3 | 4 | 5 | 6 | 7 |
| 8 | 9 | 10 | 11 | 12 | 13 | 14 |
| 15 | 16 | 17 | 18 | 19 | 20 | 21 |
| 22 | 23 | 24 | 25 | 26 | 27 | 28 |
| 29 | 30 | |||||
| July - 2026 | ||||||
| Mon | Tue | Wed | Thur | Fri | Sat | Sun |
| 1 | 2 | 3 | 4 | 5 | ||
| 6 | 7 | 8 | 9 | 10 | 11 | 12 |
| 13 | 14 | 15 | 16 | 17 | 18 | 19 |
| 20 | 21 | 22 | 23 | 24 | 25 | 26 |
| 27 | 28 | 29 | 30 | 31 | ||
| August - 2026 | ||||||
| Mon | Tue | Wed | Thur | Fri | Sat | Sun |
| 1 | 2 | |||||
| 3 | 4 | 5 | 6 | 7 | 8 | 9 |
| 10 | 11 | 12 | 13 | 14 | 15 | 16 |
| 17 | 18 | 19 | 20 | 21 | 22 | 23 |
| 24 | 25 | 26 | 27 | 28 | 29 | 30 |
| 31 | ||||||
Price lists
| DatesPrice per night (VAT included) | |
|---|---|
| 23/03/2026 · 02/04/2026 |
€ 170.00 |
| 03/04/2026 · 03/04/2026 |
€ 211.00 |
| 04/04/2026 · 04/04/2026 |
€ 253.00 |
| 05/04/2026 · 05/04/2026 |
€ 239.00 |
| 06/04/2026 · 09/04/2026 |
€ 170.00 |
| 10/04/2026 · 10/04/2026 |
€ 185.00 |
Other relevant information
Accommodation Registration Number
097084-CIM-00155
National Identification Code (CIN)
IT097084B42JQJIDZ8
