- Review 10
- occupants 6
-
2 Double beds
1 Sofa bed double
3 - 2 Bedrooms 2
- 2 bathrooms 2
- 90 m² 90 m²
- Wi-Fi Wi-Fi
Availability and prices
Accommodation
Description
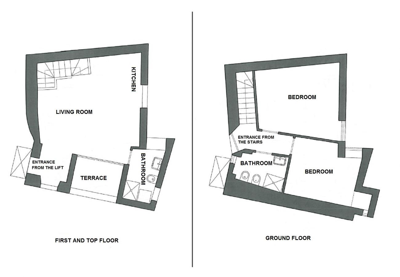
Casa Manoli is a completely renovated apartment (2015) with high quality materials and refined furnishings. The apartment is located in a characteristic “Contrada” of Varenna with panoramic view of the lake. Casa Manoli is on several floors: First floor: 2 double bedrooms, bathroom. Second floor: large living room with open kitchen, terrace, bathroom. To reach the apartment there is a staircase.
Manoli House is an elegant and refined solution, fully newly furnished and with everything you need for an independent stay. The apartment is equipped with every comfort such as flat screen TV, Wifi, air conditioning, washer / dryer, and the kitchen is fully furnished with modern appliances such as dishwasher, oven, coffee machine and so on. Casa Manoli can accommodate up to 6 people by having two double bedrooms and a double sofa bed in the living room. Both bathrooms have a shower.
Casa Manoli has a beautiful view of the lake and is an apartment located just a few steps from major attractions, such as Villa Cipressi and Villa Monastero, the Church of San Giorgio as well as bars, restaurants, shops and the lake.
Casa Manoli is located in the center of Varenna, just 150 meters from the "Parking Varenna" (with season tickets at competitive prices for our guests), 700 meters from the train station of Varenna, with trains to and from Milan at all hours and 500 meters from the ferry that connects Varenna to Bellagio, Cadenabbia, Menaggio, Tremezzo and all the center of the lake.
Remark: bed linen and towels included in the final cleaning price - It can host up to 6 people - Public payment parking in the neighborhood
This property is managed by Varenna Holidays, a leading company in the short-term rental market on Lake Como.
By booking this accommodation, you can enjoy many EXCLUSIVE ADVANTAGES that we offer to our guests. Discounts on EXPERIENCES, recreational activities designed to enrich and enhance your stay on Lake Como, as well as Cooking classes, Boat tours, E-Bike rentals, Cultural visits and Personalized experiences tailored to your tastes. Unique Coupons and OFFERS for shopping at our BOUTIQUE, a store in Varenna where you can find the best Made-in-Lake-Como products. Ceramics, Sunglasses, Fine Silk, Local Crafts, Gin, Wine, and Olive Oil: the perfect selection to keep Lake Como always in your memories.
Book with us! Our staff will assist you during your stay and recommend the best attractions to fully experience every moment. Varenna Holidays: the dream comes true.
CIR 097084-CIM-00006 / CIN IT097084B4NVGA9PN8
Manoli House is an elegant and refined solution, fully newly furnished and with everything you need for an independent stay. The apartment is equipped with every comfort such as flat screen TV, Wifi, air conditioning, washer / dryer, and the kitchen is fully furnished with modern appliances such as dishwasher, oven, coffee machine and so on. Casa Manoli can accommodate up to 6 people by having two double bedrooms and a double sofa bed in the living room. Both bathrooms have a shower.
Casa Manoli has a beautiful view of the lake and is an apartment located just a few steps from major attractions, such as Villa Cipressi and Villa Monastero, the Church of San Giorgio as well as bars, restaurants, shops and the lake.
Casa Manoli is located in the center of Varenna, just 150 meters from the "Parking Varenna" (with season tickets at competitive prices for our guests), 700 meters from the train station of Varenna, with trains to and from Milan at all hours and 500 meters from the ferry that connects Varenna to Bellagio, Cadenabbia, Menaggio, Tremezzo and all the center of the lake.
Remark: bed linen and towels included in the final cleaning price - It can host up to 6 people - Public payment parking in the neighborhood
This property is managed by Varenna Holidays, a leading company in the short-term rental market on Lake Como.
By booking this accommodation, you can enjoy many EXCLUSIVE ADVANTAGES that we offer to our guests. Discounts on EXPERIENCES, recreational activities designed to enrich and enhance your stay on Lake Como, as well as Cooking classes, Boat tours, E-Bike rentals, Cultural visits and Personalized experiences tailored to your tastes. Unique Coupons and OFFERS for shopping at our BOUTIQUE, a store in Varenna where you can find the best Made-in-Lake-Como products. Ceramics, Sunglasses, Fine Silk, Local Crafts, Gin, Wine, and Olive Oil: the perfect selection to keep Lake Como always in your memories.
Book with us! Our staff will assist you during your stay and recommend the best attractions to fully experience every moment. Varenna Holidays: the dream comes true.
CIR 097084-CIM-00006 / CIN IT097084B4NVGA9PN8
Distribution of bedrooms
1 Double bed
1 Double bed
1 Sofa bed double
Bathroom distribution
2 bathrooms
Special features
Internet
Air-Conditioned
Terrace
Lake views
Open plan kitchen (induction)
Refrigerator
Microwave
Oven
Freezer
Dishwasher
Dishes/Cutlery
Kitchen utensils
Coffee machine
Toaster
Kettle
Views
Lake
Mandatory or included services
Air conditioning: Included
Air conditioning
air conditioning with independent setting
Bed linen: Included
Bed linen
Bed linen complete with sheets, pillowcases and duvet cover if needed.
Cleaning and disinfection: € 140.00 / booking
Cleaning and disinfection
Final cleaning with deep disinfection
+ INFO
Disinfection: Included
Disinfection
Deep cleaning with certified products
+ INFO
Heating: Included
Heating
Winter heating
Internet Access: Included
Internet Access
wifi service
Marca da bollo: € 2.00 / booking
Towels: Included
Towels
set of towels with 3 sizes
Optional services
Additional cleaning: € 120.00 / booking
Additional cleaning
Additional cleaning during the stay with bed making, rearrangment of the property and bath cleaning
Aperitif by the lake in Villa Monastero in Varenna: € 55.00 / person
Arrival out of schedule: € 50.00 / booking
Arrival out of schedule
After Hours arrival - on payment
Baby high chair: € 5.00 / night
Baby high chair
Baby chair for kids up to 2 years
Breakfast Pack: € 25.00 / booking
Breakfast Pack
breakfast pack includes: breakfast buiscuits - rusks - soluble coffee – a pack of cereals - mini jams - a pack of classic tea – dessert cookies
Cot/Crib: € 10.00 / night
Cot/Crib
Cot complete with linen suitable for kids up to 2/3 years
Extra towels: € 7.50 / person
Extra towels
If you’d like to have an extra set of towels please contact us! We would be happy to provide you with fresh ones! The set includes three towels (body, face and hands).
Linen Change: € 15.00 / person
Linen Change
Would you like to have fresh linen during your stay? Let us know and we’d be delighted to assist with the change of sheets.
Luggage Storage: Included
Luggage Storage
Baggages storage for guests after check-out (max 7 hours)
Pet: € 50.00 / booking
Pet
Chance to get own pets
Welcome Pack: € 50.00 / booking
Welcome Pack
Start your holidays without problem! Book your Welcome Pack and upon arrival you don’t need to make shopping for the house; in your welcome pack you will find everything you need to start immediatly your vacation in the apatment you took. Your Welcome Pack includes:a package of pasta - Italian sauce – soluble coffee - sugar - salt - pepper - oil - vinegar - a bottle Prosecco – a bottle of still water – crackers, and also the necessary for household management such as dishwasher tablets & deterge
Taxes
Tourist tax: Included in the total price
Tax calculationPlease add the dates of the stay to display the tax conditions
Your schedule
Check-in from 16:00 to 18:00 Every day
Check-outBefore 10:00
Comments
- No smoking
- Animals are admitted to this accommodation, except for dangerous animals
- Animals are admitted to this accommodation, except for dangerous animals
Video
Booking conditions
From the booking date until 8 days before check-in, there is no cancellation penalty
Cancellation policies
In case of cancellation the following charges will apply
From the booking date until 8 days before check-in
0% of the total rent
From 7 days before until check-in
30% of the total rent
No-show
100% of the total rent
Additional notes
- The agency asks you to contact them a week before arrival to inform them of your plane/ship Nº and the arrival time to arrange key collection.
- VAT included in the accommodation price
Map and distances
-
Distances
Town centre - Varenna
10 m
Shops - La Bottega
30 m
Lake - Lago di Como
30 m
Restaurant - Osteria Quatro Pass
30 m
Train station - Varenna
700 m
Water park - Acquapark di Dervio
9 km
Availability calendar
| November - 2025 | ||||||
| Mon | Tue | Wed | Thur | Fri | Sat | Sun |
| 1 | 2 | |||||
| 3 | 4 | 5 | 6 | 7 | 8 | 9 |
| 10 | 11 | 12 | 13 | 14 | 15 | 16 |
| 17 | 18 | 19 | 20 | 21 | 22 | 23 |
| 24 | 25 | 26 | 27 | 28 | 29 | 30 |
| December - 2025 | ||||||
| Mon | Tue | Wed | Thur | Fri | Sat | Sun |
| 1 | 2 | 3 | 4 | 5 | 6 | 7 |
| 8 | 9 | 10 | 11 | 12 | 13 | 14 |
| 15 | 16 | 17 | 18 | 19 | 20 | 21 |
| 22 | 23 | 24 | 25 | 26 | 27 | 28 |
| 29 | 30 | 31 | ||||
| January - 2026 | ||||||
| Mon | Tue | Wed | Thur | Fri | Sat | Sun |
| 1 | 2 | 3 | 4 | |||
| 5 | 6 | 7 | 8 | 9 | 10 | 11 |
| 12 | 13 | 14 | 15 | 16 | 17 | 18 |
| 19 | 20 | 21 | 22 | 23 | 24 | 25 |
| 26 | 27 | 28 | 29 | 30 | 31 | |
| February - 2026 | ||||||
| Mon | Tue | Wed | Thur | Fri | Sat | Sun |
| 1 | ||||||
| 2 | 3 | 4 | 5 | 6 | 7 | 8 |
| 9 | 10 | 11 | 12 | 13 | 14 | 15 |
| 16 | 17 | 18 | 19 | 20 | 21 | 22 |
| 23 | 24 | 25 | 26 | 27 | 28 | |
| March - 2026 | ||||||
| Mon | Tue | Wed | Thur | Fri | Sat | Sun |
| 1 | ||||||
| 2 | 3 | 4 | 5 | 6 | 7 | 8 |
| 9 | 10 | 11 | 12 | 13 | 14 | 15 |
| 16 | 17 | 18 | 19 | 20 | 21 | 22 |
| 23 | 24 | 25 | 26 | 27 | 28 | 29 |
| 30 | 31 | |||||
| April - 2026 | ||||||
| Mon | Tue | Wed | Thur | Fri | Sat | Sun |
| 1 | 2 | 3 | 4 | 5 | ||
| 6 | 7 | 8 | 9 | 10 | 11 | 12 |
| 13 | 14 | 15 | 16 | 17 | 18 | 19 |
| 20 | 21 | 22 | 23 | 24 | 25 | 26 |
| 27 | 28 | 29 | 30 | |||
Price lists
| DatesPrice per night (TAX included) | |
|---|---|
| 01/11/2025 · 29/01/2026 |
€ 250.00 |
| 30/01/2026 · 28/02/2026 |
€ 263.00 |
| 01/03/2026 · 01/04/2026 |
€ 275.00 |
| 02/04/2026 · 02/04/2026 |
€ 304.00 |
| 03/04/2026 · 03/04/2026 |
€ 364.00 |
| 04/04/2026 · 04/04/2026 |
€ 393.00 |
Reviews
10
9 reviews
All
English
All reviews have been checked and authenticated. Once you have received a 'rate your stay' email based on your confirmed reservation, you can leave an accommodation review.
- 5/5Service
- 5/5Cleanliness
- 5/5Accommodation
- 5/5Location
- 5/5Value for money
|
Awesome location
A guest
| |||
|
Awesome location. Great views. Nicely renovated apartment with high ceilings close to everything Lake Como.
Awesome location. Great views. Nicely renovated apartment with high ceilings close to everything Lake Como.
|
|||
|
Thank you for your review 0
Was this useful? 0
4 years
| |||
|
Thank you, Miles and see you soon
Varenna Holidays
Thank you, Miles and see you soon
Varenna Holidays |
|
||
|
nice place for a couple with 2 children
Muriel (France)
| |||
|
the view, the acommodation it's really a good location really central. But you have to like stairs because they are many mostly when you're comming back from the Edge of the lake.
the view, the acommodation it's really a good location really central. But you have to like stairs because they are many mostly when you're comming back from the Edge of the lake.
|
|||
|
the ground was not clean.
the ground was not clean.
|
|||
|
Thank you for your review 0
Was this useful? 0
5 years
| |||
|
Hi Muriel,
thanks for your positive review. We are happy you have had a nice stay at Casa Manoli. We really hope you can come back soon.
Sorry to hear about the ground. We assure you the housekeeper always clean it, but the rough surface of the tilesee more
Hi Muriel,
thanks for your positive review. We are happy you have had a nice stay at Casa Manoli. We really hope you can come back soon. Sorry to hear about the ground. We assure you the housekeeper always clean it, but the rough surface of the tile could lead you considering it dirty even if it'is well cleaned. Kind regards Alessia |
|
||
|
Beautiful Apt
Meryl "Michelle" (United States)
| |||
|
We loved the apartment proximity to the lake and town.
We loved the apartment proximity to the lake and town. |
|||
|
Thank you for your review 0
Was this useful? 0
6 years
| |||
|
Thanks for your positive review. It was a pleasure to have you as our guests in Varenna and we hope you can come back again. Kind regards. Varenna Holidays staff
Thanks for your positive review. It was a pleasure to have you as our guests in Varenna and we hope you can come back again. Kind regards. Varenna Holidays staff
|
|
||
|
Beautiful Apt
Meryl "Michelle" (United States)
| |||
|
We loved the apartment proximity to the lake and town.
We loved the apartment proximity to the lake and town.
|
|||
|
Thank you for your review 0
Was this useful? 0
6 years
| |||
|
Hi Meryl,
thanks for your positive review and for being our guests at Casa Manoli.
Kind regards.
Alessia
Hi Meryl,
thanks for your positive review and for being our guests at Casa Manoli. Kind regards. Alessia |
|
||
|
Fabulous apartment
A guest
| |||
|
LISA S M
The apartment was centrally located. It was fresh, d and air conditioned. It had a nice view and a handy clothes washer!
LISA S M
The apartment was centrally located. It was fresh, d and air conditioned. It had a nice view and a handy clothes washer! |
|||
|
Thank you for your review 0
Was this useful? 0
7 years
| |||
|
"Hi Lisa, Thanks for your nice review and for being our guests at Casa Manoli. It was a pleasure to meet you and we really hop you can come back soon. Kind regards. Alessia"
"Hi Lisa, Thanks for your nice review and for being our guests at Casa Manoli. It was a pleasure to meet you and we really hop you can come back soon. Kind regards. Alessia"
|
|
||
|
Varenna Adventure
Edwin (United States)
| |||
|
We loved our stay in Varenna. The beds were very comfortable and the linens were nice. It wasn’t clear that it was a two story apartment and one bathroom was upstairs in the living area and one for both bedrooms to share. Also, there are 4 flights ofsee more
We loved our stay in Varenna. The beds were very comfortable and the linens were nice. It wasn’t clear that it was a two story apartment and one bathroom was upstairs in the living area and one for both bedrooms to share. Also, there are 4 flights of stairs to carry your luggage up to the apartment. It is very challenging.
|
|||
|
Thank you for your review 0
Was this useful? 0
6 years
| |||
|
Hi Edwin, thanks for your review and for being our guests at Casa Manoli. It was a pleasure to meet you. We hope you have the chance to come back soon. Varenna Holidays staff
Hi Edwin, thanks for your review and for being our guests at Casa Manoli. It was a pleasure to meet you. We hope you have the chance to come back soon. Varenna Holidays staff
|
|
||
|
Perfect Location
A guest
| |||
|
Casa Manoli was a perfect location in the heart of the city. The house was bright and welcoming, and the hosts were very accommodating for check-in.
Sophie
Casa Manoli was a perfect location in the heart of the city. The house was bright and welcoming, and the hosts were very accommodating for check-in.
Sophie |
|||
|
Thank you for your review 0
Was this useful? 0
7 years
|
|
||
|
Excellent
Nicholas (United States)
| |||
|
The guest has not left any comments in this review
|
|||
|
Thank you for your review 0
Was this useful? 0
3 years
| |||
|
Thank you Nicholas for your words
Hope to see you soon in varenna
Thank you Nicholas for your words
Hope to see you soon in varenna |
|
||
|
Excellent
Elena (Romania)
| |||
|
The guest has not left any comments in this review
|
|||
|
Thank you for your review 0
Was this useful? 0
4 years
| |||
|
Thanks for your positive review. We are happy you liked our property and we hope you can come back soon.
Kind regards
Varenna Holiday staff
Thanks for your positive review. We are happy you liked our property and we hope you can come back soon.
Kind regards Varenna Holiday staff |
|
||
Show more
Show less
Other relevant information
Accommodation Registration Number
097084-CIM-00006
National Identification Code (CIN)
IT097084B4NVGA9PN8
